V-Tour
Virtual Tour View Full Photo Gallery

Property Description

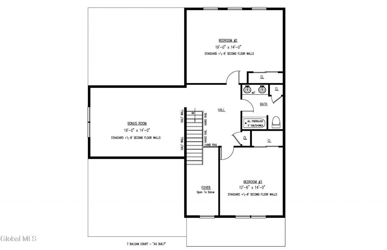
Under Construction Now! This 2,350 sq ft home blends classic design with modern comfort and comes with a full list of included upgrades.The first floor offers formal living and dining rooms plus a bright, open family room and breakfast area connected to the upgraded kitchen, complete with a center island, stainless steel appliances including a gas range, and stylish finishes. Upstairs, enjoy four bedrooms, 2.5 baths, and a convenient laundry room. The primary suite features a walk-in closet and a tiled shower.Step outside to your 12x12 deck, ideal for gatherings or quiet mornings. Located in Timber Creek Preserve, Ballston Lake, you'll love the scenic trails, green space, and unbeatable convenience to shopping, dining, and the Northway. Don't miss the opportunity to own a brand-new home with all the extras already included! Front exterior photo is of this home. Other photos are of a previously built home and may show upgrades not included in the price.

10 Balsam Court | MLS# 202611803

This single family home located at 10 Balsam Court, Ballston Lake, NY 12019 is currently listed for sale with an asking price of $719,980. This property was built in 2025 and has 4 bedrooms and 2 full and 1 partial baths with 2350 sq. ft. Balsam Court is located in the Timber Creek Preserve subdivision within the Shenendehowa school district. Search Timber Creek Preserve real estate on www.coldwellbankerprime.com today.

Upcoming Open Houses

Open House Sunday April 19th, 12:00pm - 3:00pm

Gallery

Property Features

Property Type: Residential - Single Family
Basement: Full, Unfinished
Basement: Yes
Cooling: Central Air
Fireplaces: 1
Garage: 2
Heating: Forced Air, Natural Gas
Home Style: Colonial
Lot Size: 0.16 Acres
Roof Type: Asphalt
Taxes: $13,000
Year Built: 2025

Feature Descriptions

Appliances: Dishwasher, Disposal, Gas Water Heater, Microwave, Range, Refrigerator
Association Amenities: None
Association Fee: 165/Quarterly
Association Fee Includes: Other
Days on Site: 66
Exterior: Vinyl Siding
Exterior: Drive-Paved, Lighting
Fireplace: Family Room, Gas
Flooring: Vinyl, Carpet, Laminate
Foundation: Concrete Perimeter
Interior: Walk-In Closet(s), Ceramic Tile Bath, Eat-in Kitchen, Kitchen Island
Laundry: Laundry Room, Upper Level
Lot: Sprinklers In Front, Landscaped
Parcel #: 412000 249.68-1-49
Parking: Driveway, Garage Door Opener
Parking Total: 4
Parking Total: 4
Patio/Porch: Pressure Treated Deck, Deck, Front Porch, Porch
Rooms Total: 13
Security: Smoke Detector(s), Carbon Monoxide Detector(s)
Sewer: Public Sewer
SQFT Above Grade Finished: 2350
Utilities: Cable Available, Underground Utilities
Water: Public

Room Sizes

Living Room: Level - First
Dining Room: Level - First
Family Room: Level - First
Kitchen: Level - First
Other: Level - First
Half Bathroom: Level - First
Primary Bedroom: Level - Second
Primary Bathroom: Level - Second
Bedroom: Level - Second
Full Bathroom: Level - Second
Laundry: Level - Second

Local Schools

High School: Shenendehowa
School District: Shenendehowa

Estimate Your Payment

Estimated Payment

$ 2,895.69 per month $1,602.36 Principal & Interest $1,083.33 Property Tax $209.99 Homeowner's Insurance

Change Payment Information

%
years/fixed
yearly
yearly (est.)
(Payments are an estimate and may vary by lender)

Demographics

Listed By / Shown By

Listing By

Agency Name: Tailored Real Estate Group
Agency Phone: 1 518-400-2550

Shown By

Agency Title: Coldwell Banker Prime Properties
Agency Phone: 866-323-CBPP

IDX logo

Login to My Homefinder

Pixel

THANK YOU FOR
YOUR INTEREST!

Complete the fields below to receive additional details.

Add to Calendar

Reserve A Time

Cancel Your Appointment?

Registration Successful

You are now registered to view virtual open houses for the listings.