99 Sand Hill Road, Greenfield Center, NY 12833

V-Tour
Virtual Tour View Full Photo Gallery

Property Description

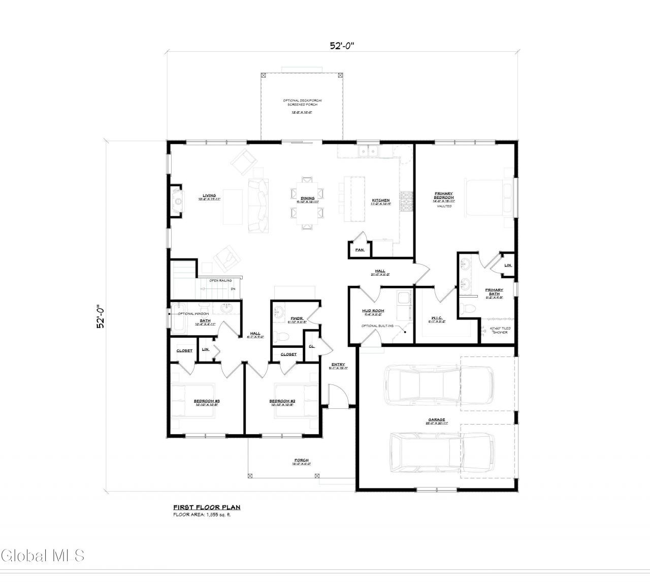
Cartier Construction is pleased to offer 8 opportunities to build custom on a private lot on Sand Hill Rd. in Greenfield, Saratoga Schools! Lots range from 1.5 acres - 13.36 acres each all feature wooded areas and unique build sites just 6 miles from Broadway in Saratoga! Six plans offered on any of the 8 lots OR build totally custom with Cartier Construction! *This plan, The North Creek, is a terrific 3BR, 2.5A ranch with open living space, a private vaulted primary suite on one side and two bedrooms and a bathroom on the opposite end with a centralized kitchen with island and pantry! Finished stain grade stair case to lower level off living room provides the opportunity to finish more space below, if desired. Enjoy the lovely front porch on this 1.5 acre lot with trees on each side for privacy! Included features are impressive: 9' ceilings, 42'' kitchen cabinetry, quartz/granite counters, propane gas FP, finished-on-site 4'' maple hardwood floors, Harvey double-hung windows, tiled bathrooms, tiled primary shower, central air, covered front porch and more.! Schedule a site walk to compare lots and plans. Each house listed can be built on any lot: Prices vary by home size and lot size/location and will be provided by listing agent upon request.* Lots are owned by builder. Building/construction loans or cash are required to build, no end loans. Contact listing agent before walking the lots please.* Let us show you the terrific value available for your new home on one of these beautiful wooded lots. *Agent related to builder, by marriage. Price increased 1/30/26 due to NYS energy code requirements.

99 Sand Hill Road | MLS# 202528084

This single family home located at 99 Sand Hill Road, Greenfield Center, NY 12833 is currently listed for sale with an asking price of $734,222. This property was built in 2026 and has 3 bedrooms and 2 full and 1 partial baths with 1855 sq. ft. Sand Hill Road is located in the Sand Hill subdivision within the Saratoga Springs school district. Search Sand Hill real estate on www.coldwellbankerprime.com today.

Gallery

Property Features

Property Type: Residential - Single Family
Basement: Yes
Basement: Full, Interior Entry, Unfinished
Cooling: Central Air
Fireplaces: 1
Garage: 2 car attached
Heating: Forced Air, Propane
Home Style: Ranch
Lot Size: 1.53 Acres
Roof Type: Asphalt
Stories: 1.0
Taxes: $9,000
Year Built: 2026

Feature Descriptions

Appliances: Dishwasher, Gas Water Heater, Oven, Range, Refrigerator
Days on Site: 180
Exterior: None
Exterior: Vinyl Siding
Fireplace: Gas, Living Room
Flooring: Tile, Carpet, Hardwood
Foundation: Concrete Perimeter, Permanent
Interior: Solid Surface Counters, Walk-In Closet(s), Ceramic Tile Bath, Kitchen Island
Laundry: Electric Dryer Hookup, Washer Hookup
Lot: Level, Wooded
Parking: Stone, Attached, Driveway, Garage Door Opener
Parking Total: 10
Parking Total: 10
Patio/Porch: Other
Rooms Total: 10
Sewer: Septic Tank
Special View Info: Trees/Woods
SQFT Above Grade Finished: 1855
Utilities: Underground Utilities
Windows: Double Pane Windows
Wooded: Yes

Room Sizes

Kitchen: Level - First
Dining Room: Level - First
Living Room: Level - First
Laundry: Level - First
Primary Bedroom: Level - First
Primary Bathroom: Level - First
Bedroom: Level - First
Full Bathroom: Level - First
Half Bathroom: Level - First

Local Schools

High School: Saratoga Springs
Elementary School: Greenfield
School District: Saratoga Springs

Estimate Your Payment

Estimated Payment

$ 2,598.21 per month $1,634.06 Principal & Interest $750.00 Property Tax $214.15 Homeowner's Insurance

Change Payment Information

%
years/fixed
yearly
yearly (est.)
(Payments are an estimate and may vary by lender)

Demographics

Listed By / Shown By

Listing By

Agency Name: Cartier Real Estate Group LLC
Agency Phone: 1 518-321-5762

Shown By

Agency Title: Coldwell Banker Prime Properties
Agency Phone: 866-323-CBPP

IDX logo

Login to My Homefinder

Pixel